REF: ICBC-42445 · Appartement · Revente Orihuela Costa

Caractéristiques

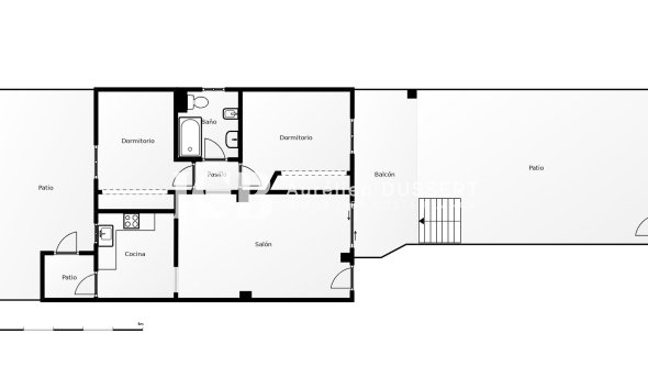
  • Construit
    73m2
  • Parcelle
    70m2
  • Chambres
    2
  • Salles de bain
    1
  • Piscine
    Oui

Fonctionnalités supplémentaires

Chambres: 2
Salles de bain: 1
Construit: 73m2
Parcelle: 70m2
Piscine: Oui
Cheminée
Porte blindée
Balcon

Description

Emplacement

Aurélien DUSSERT
Aurélien DUSSERT

Demander des informations et Télécharger mon guide vendeur

Responsable del tratamiento: Immobilier Costa Blanca, Finalidad del tratamiento: Gestión y control de los servicios ofrecidos a través de la página Web de Servicios inmobiliarios, Envío de información a traves de newsletter y otros, Legitimación: Por consentimiento, Destinatarios: No se cederan los datos, salvo para elaborar contabilidad, Derechos de las personas interesadas: Acceder, rectificar y suprimir los datos, solicitar la portabilidad de los mismos, oponerse altratamiento y solicitar la limitación de éste, Procedencia de los datos: El Propio interesado, Información Adicional: Puede consultarse la información adicional y detallada sobre protección de datos Aquí.
Contact WhatsApp